
PSシリーズExt(外部式)は、ボディ内での泡の滞留時間を少しでも長くする事が可能にするため泡を発生させるポンプと循環水の供給が別へづになっています。
その為、泡の発生量はシリーズの中で最大です。外部式ですのでキャビネット外部に設置すればより広く多くの機器をキャビネットに収納する事もできるでしょう。
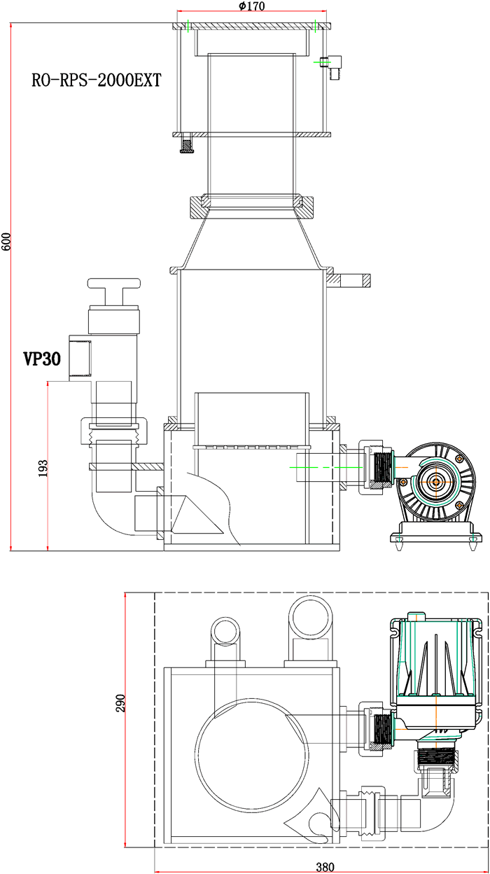
PSシリーズExt(外部式)の特徴
バブルブラスターポンプはスキマーの心臓部ともいえる大切なパーツです。このホンプはREEFoctopusが多くの時間とコストをかけて開発した製品です。
他社と異なりインペラマグネットには希少鉱物であるレアアースマグネットを採用。強力な磁力により従来のポンプよりパワフルでありながら電気代を大幅に節約することに成功しました。
ポンプ内部の金型部分を変更し、新たにインペラ内部を冷却したり空気がインペラ内部に溜まったり、細かいごみなどが蓄積しないよう循環するバイパスをポンプ内部に設けました。
スピードや効率性を高める最新のチップを使用しているため水温の上昇もきわめて少なく、クーラーなどの電気代を大幅に節約できます。
このような最新の技術がバブルブラスターポンプには組み込まれています。




| 商品名 | V | hz | 消費電力 | air吸気量(L/H) | 給水流量(L/H) | 対応水量(魚) | 対応水量 (ベルリン) |
|---|---|---|---|---|---|---|---|
| PS2000ext | 100V | 50/60hz別 | 20-30w | 960-1020 | 〜2000 | 800L | 300L |
| PS3000ext | 27-35w | 1100-1130 | 〜3000 | 1200L | 550L | ||
| PS5000ext | 40-55w | 2100-2380 | 〜4500 | 2400L | 1000L | ||
| PS6000ext | 40-55w | 2100-2380 | 〜5500 | 3000L | 1300L |
ベルリン式の対応水量は、現実的な数値で記載しています。